티스토리 뷰

목차



    대덕구청 여권 민원실 전화번호 업무시간 점심시간 야간민원 주차장 안내

     

    대덕구청 여권

    [목차여기]

    대덕구청 여권민원실 전화번호, 업무시간·점심시간, 주소·위치, 주차장 등에 대해 안내해 드리겠습니다.

     

    대덕구청 홈페이지 바로가기

     

    대덕구청 여권민원실 전화번호

    대덕구청 여권 민원실에서는 여권신청·교부, 여권심사, 여권반납, 여권분실접수, 여권기재사항변경 등의 여권과 관련된 민원을 민원정보과에서 담당하여 처리합니다.

    대덕구청 점심시간
    대덕구청 여권민원실

     

    아래 링크를 통해 대덕구청 '민원정보과'를 누르시면 전화번호를 확인하실 수 있습니다. 

     

    대덕구청 여권민원실 전화번호 확인하기

    ('민원정보과'를 누르시면 전화번호를 확인하실 수 있습니다.)

     

    대덕구청 여권민원실 업무시간 · 점심시간

    ● 대덕구청 여권 민원실 업무시간은 평일 09:00 ~ 18:00입니다.

    ※ 대덕구청 여권 민원실은 코로나19 이후로 현재까지 야간 여권민원실을 운영하고 있지 않습니다.

    주말(토요일·일요일), 공휴일은 휴무입니다.

    ● 대덕구청 여권 민원실 점심시간은 보통 11:30 ~ 13:30입니다. 해당시간에도 민원은 가능하지만 대기시간이 길 수 있습니다.

     

    대덕구청 여권민원실 정보 확인하기

     

    대덕구청 여권민원실 주소 · 위치

    대덕구청은 '오정동'에 있으며, '한남오거리', '대전동도초등학교' 인근에 위치하고 있습니다. 대덕구청 여권 민원실은 본관 1동 건물 1층에 있습니다.

     

    아래 링크를 누르시면 대덕구청 여권 민원실 주소·위치를 제대로 확인하실 수 있습니다.

     

    대덕구청 여권민원실 주소,위치 확인하기

     

    대덕구청 야간대덕구청 여권
    대전광역시 대덕구 대전로1033번길 20, 대덕구청 종합민원실(본관1동 1층)

     

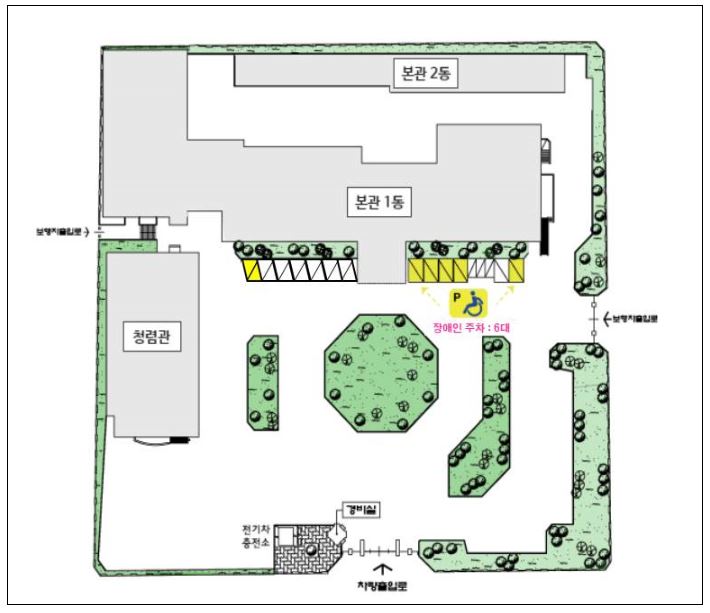
    대덕구청 주차장

    대덕구청 민원실에 자동차를 타고 오실 분들은 구청 내 주차장에 주차하시면 됩니다. 그러면 대덕구청 주차장의 위치와 요금 등에 대해서 알려드리겠습니다.

     

    대덕구청 주차장 정보 확인하기

    대덕구청 주차장대덕구청 주차
    대덕구청 주차장

     

    ● 유료운영시간 : 평일 08:00 ~ 18:00

    무료운영시간 : 유료운영시간 이외 시간, 주말(토요일·일요일), 공휴일

    ● 최초 1시간 : 무료(장애인 차량은 3시간)

    ● 이후 10분당(2시간까지) : 100원

    ● 2시간 초과 10분당 : 200원

    ● 1일 주차 : 2,400원

     

    대덕구청 주차장 주차자리가 협소하니 이점 유의하시고 방문하시기 바랍니다.

     


    여기까지 대덕구청 여권 민원실 이용객분들을 위한 안내였습니다.

     

    건강보다 소중한 건 없습니다. 나 자신과 주변사람들의 건강을 신경쓰시면 좋겠습니다.

    감사합니다.

     

    대덕구청 여권

     

    [시청] - 대전시청 여권 민원실 전화번호 점심시간 야간민원 주차장 안내 [민원정보]

     

    대전시청 여권 민원실 전화번호 점심시간 야간민원 주차장 안내 [민원정보]

    대전시청 여권 민원실 전화번호 점심시간 야간민원 주차장 안내 [목차여기] 대전시청 여권민원실 전화번호, 업무시간·점심시간, 야간민원, 주차장, 주소·위치 등에 대해 안내해 드리겠습니다.

    2.boobba1123.com

    [시청] - 유성구청 여권 민원실 전화번호 점심시간 주차장 등 안내 [민원정보]

     

    유성구청 여권 민원실 전화번호 점심시간 주차장 등 안내 [민원정보]

    유성구청 여권 민원실 전화번호 점심시간 야간민원 주차장 안내 [목차여기] 유성구청 여권민원실 전화번호, 업무시간·점심시간, 주차장, 주소·위치 등에 대해 안내해 드리겠습니다. 유성구청

    2.boobba1123.com

    [시청] - 대전 동구청 여권 민원실 전화번호 점심시간 주차장 야간 등 안내 [민원정보]

     

    대전 동구청 여권 민원실 전화번호 점심시간 주차장 야간 등 안내 [민원정보]

    대전 동구청 여권 민원실 전화번호 점심시간 주차장 야간민원 등 안내 [목차여기] 대전 동구청 여권민원실 전화번호, 업무시간, 점심시간, 주소, 주차장 등에 대해서 안내해 드립니다. 대전 동구

    2.boobba1123.com

    [시청] - 대전 서구청 여권 민원실 전화번호 점심시간 주차장 등 안내 [민원정보]

     

    대전 서구청 여권 민원실 전화번호 점심시간 주차장 등 안내 [민원정보]

    대전 서구청 여권 민원실 전화번호 점심시간 주차장 야간민원 등 안내 [목차여기] 대전 서구청 여권민원실 전화번호, 업무시간, 점심시간, 주소·위치, 주차장 등에 대해서 안내해 드립니다. 대

    2.boobba1123.com

    [시청] - 대전 중구청 여권 민원실 전화번호 점심시간 주차장 등 안내 [민원정보]

     

    대전 중구청 여권 민원실 전화번호 점심시간 주차장 등 안내 [민원정보]

    대전 중구청 여권 민원실 전화번호 점심시간 주차장 야간민원 등 안내 [목차여기] 대전 중구청 여권민원실 전화번호, 점심시간·업무시간, 주소·위치, 주차장 등에 대해서 안내해 드리겠습니다.

    2.boobba1123.com